- ユニバーサルデザイン住宅トップページ
- 新築一戸建てをエリアから探す
- 横浜市旭区
- 白根
- 横浜市旭区白根6丁目66-10の新築一戸建て






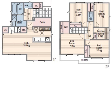
【オープンハウス開催! 旭区白根6-66-10】5/2(土)、3(日)AM10時30分~PM4時30分 ミラブルzero・ミラバス搭載物件、土地:115~120㎡、建物:105㎡、LDK18.9帖以上、カースペース2台、ご連絡頂けたら、上記日時以外でもカギ開けに参ります。お得な住宅ローン相談などもさせて頂きます。045-820-6688吉田まで
物件詳細情報
物件No.20000450703
| 所在地 | 神奈川県横浜市旭区白根6丁目66-10 | ||
|---|---|---|---|
| 交通 | 相模鉄道本線「鶴ケ峰」駅徒歩20分 | ||
| 間取 | 4LDK~4SLDK | ||
| 土地面積 | 115.94m² ~ 120.8m² 公簿 | ||
| 建物面積 | 105.78m² ~ 105.99m² 実測 | ||
| 構造・規模 | 木造 2階建て | 築年・入居 | 2026年3月上旬 |
| バルコニー | 南向き | 建物現況 | 完成済 |
| 引渡時期 | 即引渡可 | 国土法届出 | 不要 |
| 地目 | 宅地 | 用途地域 | 第一種低層住居専用地域 |
| 建ぺい率 | 50% | 容積率 | 100% |
| 都市計画 | 市街化区域 | 権利種類 | 所有権 |
| 接道 | 北側6.8M公道に接道 東側6.9M公道に接道 |
小学校区 | 不動丸小学校(650m) |
| 中学校区 | 鶴ヶ峯中学校(1000m) | 取引態様 | 一般 |
| 販売スケジュール | 先着申込 | ||
| 設備 | 公営水道、本下水、都市ガス | ||
こだわり項目
角地整形地閑静な住宅地地盤調査済LDK15帖以上省エネ・エコ住宅全室2面採光床下収納全居室収納ワイドバルコニー2面以上バルコニー複層ガラスハイルーフ駐車場食器洗浄機省エネ給湯器ガスコンロシステムキッチンカウンターキッチン3口以上コンロパントリー(食器・食品の収納庫)トイレ2ヶ所温水洗浄便座シャワー付洗面台浴室乾燥機浴室暖房追焚機能浴室1坪以上浴室に窓オートバス全居室フローリングリビング階段ウォークインクローゼットシューズインクローゼットバリアフリー仕様TVモニタ付インターホンノンホルムアルデヒド24時間換気システム小学校800m以内保育園・幼稚園800m以内公園800m以内陽当り良好通風良好フラット35Sに対応
- ※価格は物件の代金総額を表示しており、消費税が課税される場合は税込み価格です。(1,000円未満は切り上げ。)
税率は引き渡し時期により異なりますので、各物件の詳細につきましてはお問い合わせください。 - ※敷地権利が借地権のものは価格に権利金を含みます。
- ※制作中に内容が変更される場合もありますので、あらかじめご了承ください。
- ※購入の前には物件内容や契約条件についてご自身で十分な確認をしていただくようにお願いいたします。
- ※完成予想図はいずれも外構、植栽、外観等実際のものとは多少異なることがあります。
- ※CG合成の画像の場合、実際とは多少異なる場合があります。
周辺地図
- オープンハウス
- 2026年5月2日(土)〜3日(日) 10:30〜16:30
周辺施設一覧
- ショッピングセンター
- スーパー
- コンビニ
- ドラッグストア
- ホームセンター
- 飲食店
- その他店舗
- 商店街
- 大学
- 専門学校
- 高校・高専
- 中学校
- 小学校
- 保育園
- 幼稚園
- 公民館・児童館
- 病院
- 郵便局
- 役所
- 図書館
- 金融機関
- 警察・消防
- 趣味・娯楽施設
- 公園・運動施設
- 周辺の街並み
- 駅
- その他
お問い合せ先
- 株式会社ユニバーサルデザイン住宅
- お電話でのお問い合わせは
045-820-6688「ホームページを見た」とお問い合わせください - 神奈川県横浜市戸塚区川上町412-1 シーアイマンション東戸塚 1F
- 営業時間:AM9:30~PM7:30
- 定休日:水曜日
- 免許番号:神奈川県知事(4)26443号
- ユニバーサルデザイン住宅トップページ
- 新築一戸建てをエリアから探す
- 横浜市旭区
- 白根
- 横浜市旭区白根6丁目66-10の新築一戸建て





